€ 129.000,00
ID annuncio: 29/24
- Data di aggiunta:
30/10/24 - Camere da Letto:
2 - Bagni:
2 - Piani:
1 - Superficie:
90 m² - Superficie del terreno:
100 m² - Anno di costruzione:
2010 - Tipo:
Appartamento - Stato:
Nuovo - Stato al rogito:
Libero - Rif. Annuncio:
29/24 - Piano:
Piano Terra - Terrazzo:
Si - Riscaldamento:
Autonomo - Box Auto:
si - Giardino:
si
Descrizione
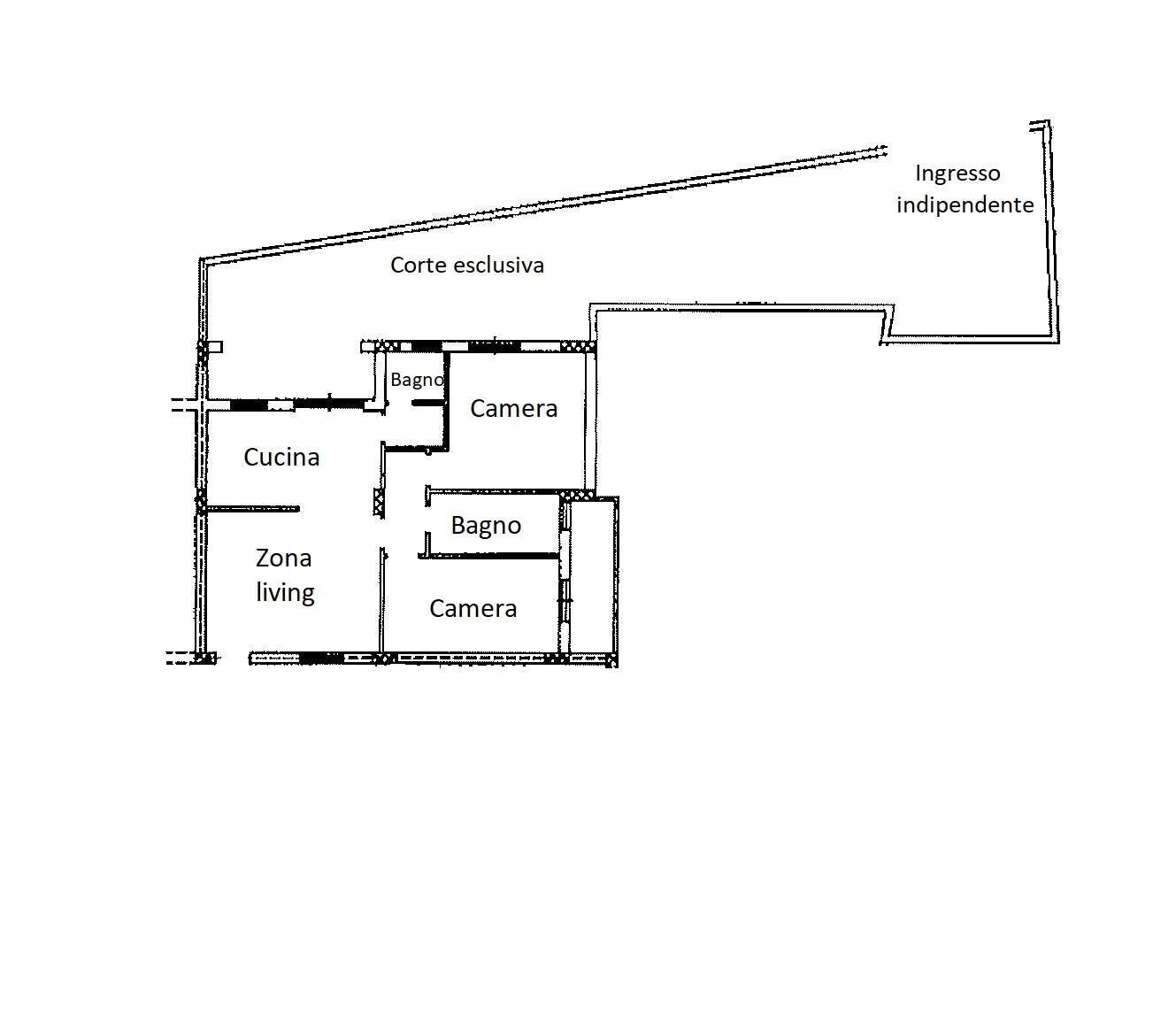
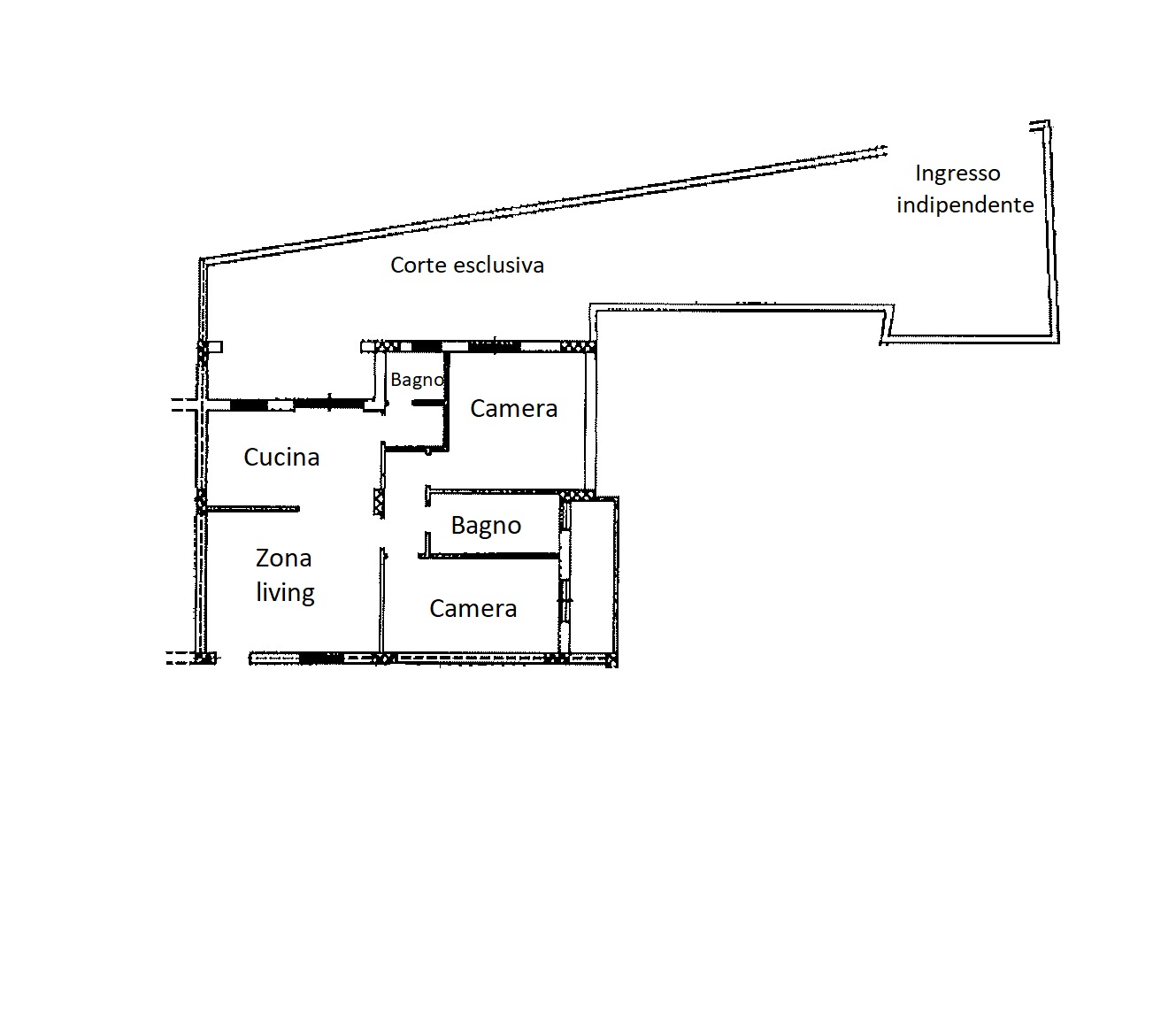
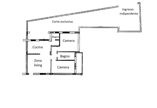
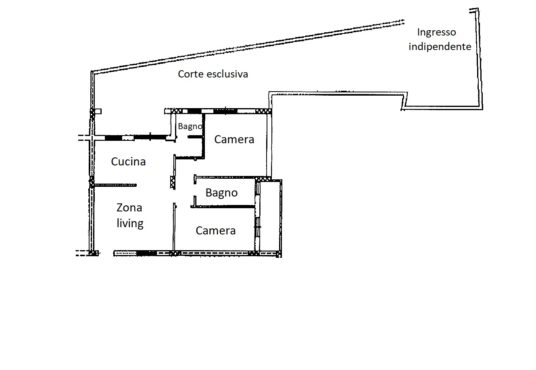
A Siderno, in zona centrale e comoda a tutti i servizi: scuole, negozi, lungomare, uffici, si vende un appartamento al piano terra di uno stabile di recente costruzione.
Entrando vi è una zona giorno con living e cucina da cui si accede all’area esterna con comoda veranda e giardino, perfetti per cene all’aperto, far giocare i bambini in sicurezza, visto che è totalmente recitata, o come zona relax essendo ad uso esclusivo e con la possibilità di creare un accesso autonomo.
Sempre dalla zona giorno si accede a un bagno di servizio e uno spazio destinato a lavanderia. Nella zona notte troviamo due camere da letto, di cui una con uscita in giardino e un’altra con balcone indipendente e un secondo bagno.
Completano l’appartamento un posto auto esclusivo e un’ampia cantina nel seminterrato dello stabile accessibile tramite la comoda rampa.
L’abitazione necessita di alcuni lavori di rifinitura con la possibilità di personalizzare lo spazio esterno in base alle proprie esigenze e ai propri gusti.
Infine ci sono diverse predisposizioni che aumentano i confort dell’immobile: impianto stufa a pellet, cucina e lavatoio esterno, predisposizione impianto solare termico e cancello automatico autonomo.
Richiesta 129000
-
Planimetria
Mappa / Zona
Caratteristiche
- garage
- giardino
- veranda
- zona centrale
Video
Contatti
- Id Annuncio: 29/24











































